
Charlie - Assistance vocale En ligne
Nouveau
La recherche vocale évolue !
- Conversation naturelle
- Reconnaissance vocale avancée
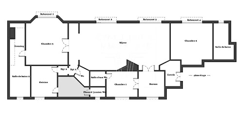
Découvrez cette magnifique villa de 174 m² située au cœur d'un domaine privé de plus de 7 000 m² à Espira-de-l'Agly, dans le département des Pyrénées-Orientales et la région Languedoc-Roussillon. Cette propriété offre un cadre de vie exceptionnel, alliant confort et intimité. À seulement quelques minutes de Perpignan, vous profiterez de grandes pièces lumineuses, comprenant quatre chambres inondées de lumière naturelle, un vaste séjour et une cuisine indépendante entièrement équipée, agrémentée d'une poêle pour des soirées chaleureuses en hiver.Les aménagements modernes, tels que le double vitrage pour une isolation optimale, les stores électriques et la fibre optique, garantissent un confort de vie contemporain. À l'extérieur, le jardin paysager bien entretenu et la terrasse avec espace barbecue sont parfaits pour vos repas en extérieur, sans oublier le terrain piscinable, idéal pour créer un espace de détente durant les journées ensoleillées.Les passionnés d'équitation seront ravis de découvrir la présence de deux box à chevaux, un atout rare pour une propriété de ce genre. Le terrain entièrement clôturé offre une sécurité et une tranquillité appréciables.Cette villa de luxe à vendre à Espira-de-l'Agly représente une opportunité unique pour ceux en quête d'une qualité de vie inégalée dans le Sud de la France, alliant espace, charme et confort.
…Par Beautiful South
À Saint-Ouen-sur-Seine, dans le département de la Seine-Saint-Denis en Île-de-France, cet appartement à vendre se situe au coeur du quartier des Puces - Garibaldi. Ce loft brut, disponible immédiatement, se trouve dans un bâtiment chargé d'histoire, anciennement une entreprise de déménagement et de garde-meubles, qui conserve une architecture industrielle durable. Positionné au 2ème étage avec ascenseur, ce plateau s'étend sur 96,20 m² Carrez et offre une totale liberté d'aménagement. Plusieurs configurations sont possibles, incluant la création de deux chambres, une salle de bain, une salle d'eau et des WC. Ces options sont indicatives, permettant à chaque futur propriétaire d'exprimer son projet personnel. Le volume de ce bien se distingue par des matériaux authentiques : briques apparentes et menuiseries en aluminium, qui confèrent une identité unique à cet espace loft. Ce bien rare présente un fort potentiel et est situé dans un secteur dynamique, aux portes de Paris, avec une disponibilité immédiate. Bien soumis au statut de la copropriété. Une place de stationnement accompagne l'appartement. Métro ligne 13 : Garibaldi à 600 m Métro ligne 14 : Mairie de Saint-Ouen à 900 m. Bien non soumis au DPE. Taxe foncière : non communiquée pour le moment, le montant sera déterminé après mise en imposition due à la réhabilitation lourde. Pour plus d'informations sur ce bien, consultez le site Géorisques : https://www.georisques.gouv.fr Contact : Grégory au 06 60 65 34 66 RSAC : 822 473 120 Paris Copropriété de 49 lots (Pas de procédure en cours). Gregory Brasier (EI) Agent Commercial - Numéro RSAC : 822 473 120 - Paris.
…Par Espaces Atypiques Seine Saint Denis
NOUVEAUTÉ À COLOMBES (92) Éligible Prêt à Taux Zéro – TVA réduite – Frais de notaire réduits Livraison : 4ème trimestre 2027 Découvrez ce superbe 2P de 42m², situé au 1er étage d’une résidence neuve aux lignes modernes, idéalement implantée dans un quartier en plein renouveau à Colombes. L’appartement se compose d’un spacieux séjour avec cuisine ouverte, baigné de lumière et d'une salle de bains équipée avec WC. UNE RÉSIDENCE MODERNE ET AGRÉABLE À VIVRE La résidence, articulée autour d’un cœur d’îlot paysager, offre un cadre de vie paisible et verdoyant. Conçue selon les dernières normes environnementales, elle garantit performance énergétique et confort au quotidien : • Certification BBC et RE2020 • Isolation phonique et thermique renforcée • Ascenseur et accessibilité PMR • Espaces extérieurs généreux (balcons, terrasses, jardins privatifs) • Faibles charges et consommations individualisées UN EMPLACEMENT IDÉAL À COLOMBES Située dans un secteur dynamique et recherché, la résidence bénéficie de toutes les commodités à proximité immédiate : • Commerces, écoles, équipements sportifs et services publics accessibles à pied • Tramway T1 à seulement 450 mètres (station vers le métro M13 Asnières–Les Courtilles en 2 minutes) • Accès rapide aux grands axes et aux transports vers Paris PRIX Appartement : 242 000 € LES ATOUTS DE CE PROGRAMME NEUF • Achat en direct promoteur • Garantie constructeur 10 ans • Frais de notaire réduits • Éligibilité au PTZ et à la TVA à 5,5 % (sous conditions) • Emplacement stratégique et valorisant à Colombes Intéressé par ce bien ? Contactez dès maintenant votre conseiller immobilier neuf dédié pour plus d’informations et une étude personnalisée :
…Par Bonaparte Promotion Paris
À vendre à Guéthary, dans le département des Pyrénées-Atlantiques, en région Aquitaine, cette belle maison basque est idéale pour un projet d'achat maison Guéthary. Elle se compose de deux lots distincts, à seulement 7 minutes à pied du centre-ville. Le premier lot comprend un local commercial de 85 m², actuellement loué par une boutique de vêtements, générant un revenu mensuel de 2 660 €. Le second lot est un appartement spacieux de 80 m², avec une entrée privée et une cour privative. Il comprend un salon, une cuisine, deux chambres (l'une avec douche à l'italienne), une salle de bain séparée et un espace buanderie/cuisine d'été. L'appartement bénéficie d'une exposition sud et ouest pour une luminosité optimale. De plus, les combles aménageables offrent un potentiel supplémentaire de 40 m². Cette maison Guéthary à vendre représente une opportunité rare sur le marché.
…Par Carre Ouest
Le Cabinet Bénéat-Chauvel vous propose à SARZEAU (56370) cette maison récente aux prestations soignées, offrant un cadre de vie moderne et chaleureux à proximité de toutes les commodités de la Presqu'île. Dès l'entrée, vous serez séduit par la pièce de vie principale qui constitue le cœur de la maison : un salon/séjour lumineux bénéficiant d'une hauteur sous plafond impressionnante, le tout agrémenté d'un poêle à bois parfait pour vos soirées d'hiver. Cet espace de réception est en communication avec une belle cuisine entièrement équipée, alliant esthétisme et fonctionnalité. L'agencement privilégie le confort avec une véritable vie de plain-pied, comprenant une chambre confortable avec placard intégré et une salle d'eau privative avec WC au rez-de-chaussée. À l'étage, l'escalier mène à une vaste mezzanine pouvant être utilisée comme bureau ou espace de détente, distribuant également deux chambres supplémentaires et une salle de bains avec WC. Le tout est édifié sur un joli terrain d'environ 565 m², offrant un espace extérieur idéal pour profiter des beaux jours en toute intimité. Cette maison à acheter à SARZEAU, avec ses volumes et son état impeccable, mérite d'être découverte sur rendez-vous. Prix FAI : 399 000 euros dont 5.00 % honoraires TTC à la charge de l'acquéreur.
…Par Beneat Chauvel Sarzeau
À vendre appartement Paris dans le 6ème arrondissement, situé à 2 minutes des grilles du jardin du Luxembourg, rue Bréa. Situé au 1er étage sur cour, cet appartement de 31 m² comprend une entrée, un séjour avec cuisine américaine entièrement équipée, une chambre et une salle d'eau avec WC. Rénové récemment, il offre clarté et tranquillité. Cet emplacement privilégié permet un accès facile aux boutiques, au métro et au jardin. Un choix idéal pour un élégant pied-à-terre à acheter à Paris.
…Par Materre Et Mollica Immobilier

Charlie - Assistance vocale En ligne
Nouveau
La recherche vocale évolue !
Appartement en vente à LEVALLOIS PERRET, Hauts-de-Seine, Île-de-France. Situé au rez-de-chaussée, cet appartement de 31,91 m² se trouve dans un état convenable, comprenant une pièce de vie lumineuse, une cuisine ouverte, une chambre et une salle d'eau avec WC. Il se distingue par sa cheminée en marbre, sa belle hauteur sous plafond et ses grandes fenêtres qui lui assurent une belle luminosité. Le parquet ciré et les éléments anciens ajoutent au charme de ce bien. La copropriété dispose aussi d'une cour arborée et d'un local à vélos. Une cave complète l'ensemble. Pour un achat d'appartement à acheter à LEVALLOIS PERRET, n'hésitez pas à nous contacter.
…Par Paris Seine
Vous souhaitez acquérir un appartement au cœur du centre historique de Pézenas ? Cet appartement de 100 m², situé dans un immeuble historique rénové et sans travaux à prévoir, pourrait être votre nouvelle acquisition. Après avoir monté une série de marches menant à un hall lumineux au 2ème étage, vous accédez à une vaste pièce à vivre traversante de plus de 40 m², avec une cuisine ouverte parfaitement aménagée. Vous serez séduit par ses caractéristiques anciennes, telles que les hauts plafonds à la française, les moulures d'époque, et un parquet en chêne massif. Grâce à son exposition sud-ouest et son étage élevé, cet appartement bénéficie d'une belle luminosité toute l'année. La partie nuit se compose de trois belles chambres, deux salles d'eau, un dressing de 4 m², et un WC séparé. Vous pourrez également profiter d'une cour commune intime et calme, idéale pour les moments de détente estivaux ou protégée des vents d'hiver. De plus, une cave est à votre disposition. Situé dans une ville vivante avec de nombreux commerces, écoles et transports à proximité, cet appartement représente une excellente opportunité pour un achat appartement Pézenas. Des parkings sont disponibles devant l'immeuble (non privatifs) et la copropriété présente de faibles charges. Contact : Valentine Macquet 06 60 81 85 10.
…Par Marine Stella Immobilier
Au cœur de la nature, cette maison d'exception de 280 m² habitables (610 m² au total) est située à SAINT PIERRE DE CHARTREUSE, dans le département de l'Isère, en région Rhône-Alpes. Sur un terrain de près de 6000 m², vous pourrez profiter d'un cadre idyllique avec un ruisseau apaisant et une vasque naturelle, parfaite pour se baigner en toute intimité. L'entrée de la maison s'ouvre sur un remarquable séjour de 35 m², doté d'une cheminée majestueuse et d'un plafond à la française, prolongé par un grand balcon orienté à l'Est et au Sud. La maison comprend également une cuisine indépendante, une salle à manger et un garage de plain-pied. Le niveau inférieur, qui pourrait être indépendant, abrite deux chambres, un bureau-bibliothèque et une salle de bains atypique, ainsi que des espaces techniques. À l'étage, une immense mezzanine de 50 m² dessert trois chambres, un dressing et une salle d'eau, tandis qu'un espace sous les toits de 140 m² est aménageable. Malgré son charme incontestable, la maison nécessite des travaux de rénovation énergétique pour exprimer pleinement son potentiel. Le prix a été revu pour permettre aux futurs acheteurs de réaliser ce projet. Il s'agit d'une occasion rare d'acquérir une maison à acheter à SAINT PIERRE DE CHARTREUSE, à seulement 5 minutes à pied du village, tout en bénéficiant d'un environnement naturel exceptionnel. Taxe foncière : 4 732 euros. Classe énergie : G / Classe climat : G. Contact : Edwige de Préval (EI) - 06 87 61 23 35, Agent commercial indépendant RSAC Grenoble n° 815 164 280.
…Par Espaces Atypiques Grenoble
Découvrez cette villa à vendre à Mougins, située dans le secteur très recherché du domaine privé et sécurisé Les Parcs de Mougins, dans les Alpes-Maritimes, Provence-Alpes-Côte d'Azur. Cette somptueuse villa en pierre de taille allie parfaitement authenticité et raffinement. Dès l'entrée, le majestueux portail en fer forgé révèle le caractère unique de cette propriété d'exception. Les pièces spacieuses bénéficient d'une abondante lumière naturelle, avec un double salon aux plafonds cathédrale, une élégante salle à manger et une cuisine rénovée, donnant accès à un sous-sol complet. La mezzanine et le vaste bureau offrent un cadre propice à la sérénité. L'espace nuit compte cinq suites raffinées, incluant deux chambres de maître spacieuses, pour un confort optimal. En rez-de-jardin, toutes les pièces s'ouvriront sur un terrain plat, ensoleillé, menant à une magnifique piscine et son pool house, à l'abri des regards. Le sous-sol comprend également une chambre de service en suite, une buanderie et une salle modulable pour diverses activités. Un garage fermé et plusieurs places de stationnement sont également disponibles. Exposée plein Sud et au calme absolu, cette villa à acheter à Mougins permet de profiter d'un cadre de vie luxueux et d'un art de vivre provençal dans l'un des plus beaux domaines de la région.
…Par John Taylor Mougins
À vendre : une maison de luxe à Lattes, Hérault, dans la région Languedoc-Roussillon. Située dans un secteur résidentiel prisé, cette villa entièrement rénovée offre environ 155 m² habitables sur une parcelle joliment paysagée de 1 000 m², agrémentée d'une piscine traditionnelle.Dès l'entrée, un hall avec espace de rangement mène aux différents espaces de la maison. Au rez-de-chaussée, vous découvrirez un séjour lumineux grâce à sa triple exposition, qui s'ouvre sur une cuisine aménagée et entièrement équipée, incluant un coin cheminée pour une atmosphère chaleureuse. Une buanderie indépendante de 10 m² et un WC séparé complètent cet étage.La villa se compose également d'une suite parentale au rez-de-chaussée, dotée d'une salle de bains, d'un dressing, et d'un accès direct au jardin et à la piscine.À l'étage, l'espace nuit se divise en trois chambres disposant de rangements, d'une salle d'eau et d'un WC indépendant.À l'extérieur, le jardin soigné et sans vis-à-vis offre un cadre rare et privilégié, et la piscine traditionnelle s'intègre parfaitement dans cet environnement verdoyant. La parcelle permet un accès facile tout autour de la maison, ajoutant confort et praticité.Un portillon d’accès privatif vous mène directement aux berges du Lez, idéal pour des promenades à pied ou à vélo. Un garage sécurisé d’environ 25 m², équipé d’une mezzanine avec rangements, complète cette offre.Les atouts de cette maison incluent :- Calme et absence de vis-à-vis- Séjour avec triple exposition et coin cheminée- Cuisine aménagée et équipée ouverte sur le séjour- Suite parentale au rez-de-chaussée- Jardin paysagé et piscine traditionnelle- Maison entièrement climatisée- Quartier recherché, proche de toutes commodités : commerces, écoles et transports.Une villa de prestige à Lattes, alliant confort, élégance et qualité de vie, dans l'un des environnements les plus recherchés.
…Par Poncet & Poncet Christie's International Real Estate Occitanie
Entre Audierne et Poullan-sur-Mer, le Groupe Immobilier Mercure Bretagne vous propose une vaste maison familiale en pierre, construite dans les années 70 avec un savoir-faire et une robustesse exemplaires. Nichée dans un cadre verdoyant et recherché, cette propriété se trouve à seulement dix minutes de l’océan et de ses plages magnifiques, ainsi qu’à trente minutes de Quimper.Dès l’entrée, le hall cathédrale impressionne par ses volumes généreux et sa luminosité. Les pièces de vie, particulièrement spacieuses, offrent une circulation fluide et une atmosphère accueillante. Le grand salon-séjour, organisé autour d’une élégante cheminée, invite à la détente et aux moments partagés. La cuisine, conviviale et fonctionnelle, dispose d’un vaste espace repas pour recevoir en toute simplicité.Le rez-de-chaussée abrite également une confortable suite parentale avec salle de bain privative, ainsi que des sanitaires séparés pour assurer confort et intimité.À l’étage, cinq chambres de belle taille, un grand bureau (ou sixième chambre), une salle de bain et des toilettes indépendants complètent cet espace nuit pensé pour accueillir famille et amis.À l’extérieur, un terrain paysager de 5 800 m² offre de multiples possibilités d’aménagement telles qu’une piscine, un jardin potager ou des aires de jeux. Une terrasse plein Sud prolonge harmonieusement les espaces intérieurs, parfaite pour profiter des journées ensoleillées.De vastes dépendances renforcent l’attrait de la propriété : un triple garage, une cuisine d’été, un abri voiture et plusieurs espaces annexes à aménager selon vos envies.Solide, lumineuse et fonctionnelle, cette maison séduira les amateurs de grands volumes et de tranquillité, désireux de vivre dans un cadre authentique proche de l’océan et des plus belles plages du Finistère Sud.Prix de vente honoraires inclus : 477 000 euros Honoraires charge acquéreur Honoraires : 6 % TTC du prix hors honoraires Prix de vente hors honoraires : 450 000 euros Classe énergie : N/A Classe climat : N/A Montant estimé des dépenses annuelles d'énergie pour un usage standard : non applicable Les informations sur les risques auxquels ce bien est exposé sont disponibles sur le site Géorisques : www.georisques.gouv.fr
…Par Agence Mercure Bretagne
Guy Hoquet Prestige vous propose à la vente un appartement familial de caractère situé au cœur du 9ème arrondissement de Paris, à proximité immédiate de Saint-Lazare et du 8ème arrondissement. Ce bien, appartement de luxe à vendre PARIS, se trouve au 3ème étage avec ascenseur d'un bel édifice du XIXème siècle et possède une surface de 95 m². Exposé plein Sud, cet appartement traversant et lumineux offre de beaux volumes, une hauteur sous plafond de 2,75 m, et un plan modulable. Il comprend une double réception, 3 chambres, une cuisine indépendante, et permet de multiples possibilités d’aménagement grâce à des murs non porteurs. Le bien convient à un usage d’habitation ou aux professions libérales. Une cave de 14 m² complète ce bien. Situé dans un secteur central très recherché. Charges mensuelles de 261 euros. Honoraires à la charge du vendeur. Copropriété de 18 lots d'habitation. Charges annuelles : 3140 euros.
…Par Agence Guy Hoquet Prestige Passy Muette
À vendre, dans le 16ème arrondissement de Paris, un splendide appartement familial à rénover situé au quatrième étage d'un immeuble Art déco classé de standing avec gardien. Cet appartement Paris 16ème à vendre s'étend sur une superficie de 138,55 m² loi Carrez et offre de généreux volumes ainsi qu'une vue dégagée appréciable. Climatisé et traversant, il profite d'une belle luminosité. Le plan de l'appartement est modulable, comprenant une entrée, un séjour spacieux de 47 m² avec cheminée, une cuisine séparée, trois chambres, un dressing, deux salles de bains, une salle de douche avec toilettes, ainsi que des toilettes séparées. En complément, ce bien est vendu avec une cave et un débarras. Situé dans un quartier privilégié, vous serez à proximité des commerces et des transports. Cet appartement à acheter Paris 16ème représente une belle opportunité dans le département de Paris en région Île-de-France.
…Par Consultants Immobilier Passy
Emplacement privilégié : au cœur de Cavaillon, à quelques pas des commerces, écoles, restaurants et transports. Entièrement rénovée avec soin et des matériaux de qualité, cette maison de ville de 190 m² présente de nombreuses options d'aménagement, idéale tant pour une résidence principale que pour un investissement locatif. Caractéristiques principales : 190 m² habitables, 4 grandes chambres avec salle d'eau privative, stationnement privé, un atout rare en centre-ville, et aucun frais à prévoir. Ce bien possède un fort potentiel locatif et s'avère parfait pour la location saisonnière (chambres d'hôtes ou Airbnb). Elle peut être transformée sans travaux en : - 3 appartements de 2 pièces - 3 studios indépendants. Rentabilité optimisée grâce à sa configuration pensée pour la location. Que vous soyez investisseur ou famille nombreuse, cette maison offre des possibilités variées dans un cadre de vie agréable et dynamique. Contactez-nous dès aujourd'hui pour organiser une visite et découvrir le potentiel de cette maison à vendre à Cavaillon, dans le département du Vaucluse, en région Provence-Alpes-Côte d'Azur.
…Par Nadotti Immobilier Cavaillon
Découvrez cet appartement à acheter Paris 18ème, situé à quelques pas de la rue Lepic. Niché au quatrième et dernier étage d'un immeuble ancien soigneusement entretenu, ce charmant studio de 31,17 m² au sol (27,06 m² loi Carrez) séduit par sa luminosité grâce à de larges fenêtres orientées à l'ouest, tout en offrant une atmosphère calme et fonctionnelle. La pièce de vie est bien pensée avec une cuisine ouverte entièrement équipée, un espace dressing et une mezzanine qui optimise l'espace. Vous trouverez également une salle de douche et des toilettes séparées. Ce bien rare est complété par une cave saine et est idéalement situé au cœur d'un quartier prisé de Paris 18ème, à proximité immédiate des commerces et des transports, parfait pour une vente appartement Paris 18ème.
…Par Junot Abbesses
Dans l'un des quartiers les plus prisés de Versailles, cet appartement à vendre se distingue par sa rareté sur le marché. Niché dans un bel immeuble en pierre de taille avec ascenseur, un atout majeur dans ce secteur recherché, cet appartement de 110 m² présente de très beaux volumes. Vous serez séduit par son séjour spacieux de près de 40 m², baigné de lumière grâce à son exposition traversante Est/Ouest, assurant une luminosité naturelle tout au long de la journée. La disposition des pièces est idéale avec une cuisine indépendante, trois chambres, une salle de bains, une salle d'eau, 2 toilettes, et de nombreux rangements. Un balcon filant prolonge le séjour, offrant une agréable vue sur l'extérieur verdoyant. L'immeuble, de standing et parfaitement entretenu, accentue le caractère exceptionnel de ce bien. Aucun travaux n'est à prévoir, l'appartement est prêt à accueillir ses nouveaux propriétaires. Ce bien en copropriété se vend avec une cave, et un garage est disponible en supplément, ajoutant à l'attrait de cet appartement à acheter à Versailles. Situé dans le département des Yvelines, en Île-de-France, ce bien est particulièrement apprécié pour son emplacement. Charges de 356 €/mois (ascenseur, chauffage). Pas de procédure en cours. DPE D/D. Honoraires à la charge de l'acquéreur de 4% sur le prix net vendeur de 1,104,000 €. Montant moyen des charges courantes : 4,272 €/an. Montant estimé des dépenses annuelles d'énergie : entre 1980€ et 2740€. Joséphine REGALDI - Agent commercial - EI - RSAC Versailles 853850899.
…Par Barnes Versailles
À vendre à Nice, Alpes-Maritimes, cet appartement de 4 pièces en dernier étage dans le quartier prisé de Fabron s'étend sur 155 m². Il comprend un vaste séjour de 50 m², une salle à manger, une cuisine séparée, deux chambres, une troisième chambre/bureau, ainsi que deux salles d'eau et un patio intérieur traversant. Profitez de près de 50 m² de terrasses offrant une vue imprenable sur la mer et la baie des Anges. Ce bien est accompagné d'une cave et d'un grand garage fermé. Idéalement situé à proximité des plages, des commerces et des écoles, cet appartement à acheter à Nice se distingue par son emplacement de choix. Exclusivement proposé par Côte d’Azur Sotheby’s International Realty.
…Par Côte D'azur Sotheby's International Realty Nice
Villa contemporaine à vendre au Lavandou, dans le département du Var en région Provence-Alpes-Côte d'Azur. Cette propriété est nichée dans un quartier résidentiel privilégié et s'étend sur une parcelle d'environ 823 m², offrant un cadre de vie alliant confort et espace. Développant environ 170 m² habitables, elle se compose d'une pièce de vie spectaculaire de 73 m² avec salon, salle à manger et cuisine ouverte, s'ouvrant sur des terrasses et un espace piscine. Le niveau principal inclut également une suite de plain-pied, une buanderie, un WC invités et un accès au garage. À l'étage, trois chambres supplémentaires avec luminosité optimale, deux salles de bains et plusieurs terrasses complètent cet espace. À l'extérieur, une grande terrasse en bois, une piscine intégrée et un pool house sont idéaux pour les moments de convivialité. Cette villa est un bien immobilier de grande qualité, pensée pour ceux en quête d'un achat de villa au Lavandou.
…Par Saphea Patrimoine
À La Clusaz, en Haute-Savoie, découvrez ce terrain à bâtir à vendre, s'étendant sur près de 1 000 m². Idéalement situé dans un secteur prisé, il bénéficie d'une exposition plein sud et offre une vue imprenable sur la chaîne des Aravis. C'est une occasion rare d'acquérir un terrain à bâtir à acheter à La Clusaz, parfait pour réaliser votre projet de chalet, personnalisé selon vos goûts et vos besoins. Avec une surface propice à la construction, vous avez la possibilité d'ériger un chalet d'environ 220 m². Que vous souhaitiez créer une résidence familiale accueillante ou un chalet haut de gamme, chaque aspect pourra être conçu selon vos désirs. La configuration de cette parcelle facilite son intégration harmonieuse dans le paysage montagnard, et son orientation sud assure une luminosité optimale ainsi que des vues majestueuses sur les montagnes environnantes. Son emplacement est également un atout : à seulement 1 km des remontées mécaniques de Balme, vous accédez directement au domaine skiable, tout en étant à quelques minutes du centre du village et de ses diverses commodités. Ne manquez pas cette occasion unique de concrétiser votre projet dans un cadre exceptionnel.
…Par Barnes Megève
À la recherche d'un achat maison Sèvres ? Découvrez cette somptueuse villa en pierre meulière, située sur un terrain verdoyant de 1 500 m² dans le département des Hauts-de-Seine, en Île-de-France. Avec une superficie habitable de 430 m², cette maison Sèvres à vendre allie élégance intemporelle et confort haut de gamme. Dominant les hauteurs, elle offre une vue imprenable sur Paris depuis ses étages. Dès l'entrée, vous serez impressionné par le hall d'accueil spectaculaire et son majestueux escalier en bois massif. Le rez-de-chaussée présente de magnifiques pièces de réception, avec une hauteur sous plafond remarquable, un vaste salon avec cheminée, un salon attenant, une salle à manger raffinée et une cuisine conviviale s'ouvrant sur une véranda lumineuse, parfaite pour des moments en famille ou entre amis. Les étages abritent cinq chambres, dont une suite parentale avec un grand dressing, ainsi que deux salles de bains et deux salles de douche. Le sous-sol complet ajoute une réelle plus-value avec sa buanderie, salle de jeux, salle de projection, cave, atelier et chaufferie, le tout communiquant avec une serre donnant sur une cour anglaise. À l’extérieur, le jardin paysager, entièrement clos, offre un cadre de vie paisible, sublimé par la présence de majestueux pins centenaires. Une dépendance, pouvant être aménagée en cuisine d’été ou espace bien-être, complète ce bien exceptionnel. N'attendez plus pour concrétiser votre rêve de propriété en Île-de-France avec cette vente maison Sèvres.
…Par Junot Saint-cloud
À proximité de MONTFORT L'AMAURY, dans un cadre paisible, cette vaste chaumière a été rénovée et se situe sur un terrain d'environ 2 650 m² avec piscine. L'entrée dessert un grand séjour salon, en partie sous charpente, s'ouvrant sur une terrasse orientée sud, complété par une cheminée à double foyer. La maison comprend également une salle à manger attenante, une cuisine séparée avec cellier, une salle de douche buanderie, ainsi qu'une pièce extérieure qui peut être raccordée à la maison. À l'étage, vous trouverez un palier menant à un bureau, une chambre principale avec dressing et salle de bains, trois autres chambres, une salle de bains, ainsi que des combles aménageables offrant la possibilité de créer deux chambres supplémentaires. Le grand sous-sol propose un double garage et divers espaces de rangement. Cette Maison de luxe à acheter à MONTFORT L AMAURY est une opportunité rare dans le département des Yvelines, en région Île-de-France.
…Par Agence De La Poule Faisane & Du Vieil Orme
À La Flotte, dans le département de la Charente-Maritime, découvrez une maison à vendre qui allie charme et modernité. Située à proximité du marché et du port, cet ancien chai rénové s'étend sur environ 170 m2 répartis sur deux niveaux. Vous serez séduit par un espace lumineux comprenant une cuisine et une salle à manger s'ouvrant sur l'extérieur. La maison dispose d'une suite parentale avec dressing et salle d'eau/bain, le tout donnant sur un agréable patio. Une seconde partie comprend une chambre avec salle d'eau et une pièce de rangement. À l'étage, un salon chaleureux s'ouvre sur l'extérieur, accompagné de deux chambres avec salle d'eau. À l'extérieur, profitez d'un jardin avec terrasse et piscine, ainsi que d'un garage et d'un local à vélo. Cette maison à acheter à La Flotte est bien pensée, offrant des volumes généreux dans un emplacement privilégié.
…Par Barnes Ile De Re
À la recherche d'une maison à acheter à Mougins ? Cette bastide provençale de prestige, située dans un quartier recherché, propose un emplacement exceptionnel à proximité du Royal Golf Mougins. Implantée sur un terrain paysager de plus de 10 000 m², cette maison MOUGINS à vendre offre une surface habitable d'environ 490 m², alliant élégance et confort haut de gamme.La propriété se compose d’un vaste double séjour de 65 m², d’une cuisine indépendante de 23 m², ainsi que de six chambres en suite, dont une suite parentale avec dressing. Un studio indépendant de 42 m², une salle de sport entièrement équipée et une piscine viennent compléter cet ensemble.Avec des prestations de qualité et des matériaux nobles utilisés lors de la rénovation, cette demeure se distingue sur le marché de l'immobilier de luxe. Le parking privé, capable d'accueillir jusqu’à huit véhicules, assure un confort optimal.Idéalement située, cette maison est à quelques minutes des commerces, restaurants et attractions de la Côte d’Azur, tout en offrant un cadre de vie paisible et verdoyant.Visites sur rendez-vous. Dossier complet disponible sur demande.Présentée par Côte d’Azur Sotheby’s International Realty, spécialiste de l’immobilier de prestige dans les Alpes-Maritimes, région Provence-Alpes-Côte d'Azur.
…Par Côte D'azur Sotheby's International Realty Mougins
Située dans un cadre exceptionnel à Anglet, Pyrénées-Atlantiques, cette maison à vendre offre un environnement paisible et recherché. Avec une superficie de près de 1 000 m², elle allie confort et intimité. La propriété comprend quatre chambres et deux salles d'eau, tandis que les espaces de vie s'ouvrent sur un jardin lumineux. À l'extérieur, une terrasse couverte et une piscine chauffée viennent compléter cette agréable maison. Son emplacement privilégié, à proximité des plages de la Chambre d'Amour, des golfs de Chiberta et de la place des Cinq Cantons, en fait une option idéale pour un achat Maison de luxe Anglet.
…Par Orpi - Agence Des 5 Cantons
Recevez par email les nouvelles annonces correspondant à votre recherche
En validant ce formulaire vous acceptez les conditions générales d’utilisation de Propriétés le Figaro.
Ces agences proposent une sélection de biens de luxe en vente . N’hésitez pas à les contacter pour bénéficier d’un accompagnement personnalisé.